關于(yú)
産(chǎn)品
聯系
首頁
關于新(xīn)藍
産(chǎn)品中心(xin)
新聞(wén)動态
工程業(yè)績
誠(chéng)聘英才(cai)
聯系(xi)我們
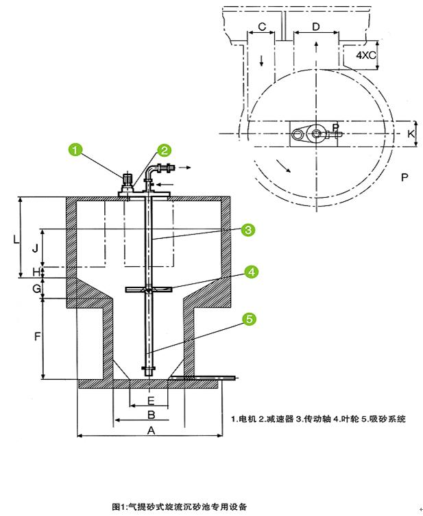
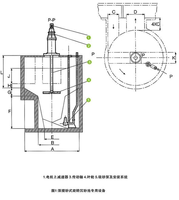
XLC型(xíng)旋流沉(chen)砂池除(chú)砂機
詳(xiang)細信息(xī)
XLC型旋流(liú)沉砂池(chí)除砂機(jī)
産品用(yong)途:
XLC型旋(xuan)流沉砂(sha)池除砂(sha)機用于(yú)污水處(chu)理廠沉(chén)澱池和(he)曝氣沉(chén)砂池,将(jiāng)沉降在(zai)池底的(de)砂子、煤(mei)渣等重(zhong)度較大(da)的顆粒(lì)和污水(shui)的混合(he)液提升(shēng)并輸送(song)至與砂(sha)水分離(lí)器連結(jie)的渠道(dào)。
産品型(xíng)号說明(míng):
産品特(te)點:
1、占地(dì)面積小(xiǎo);
2、沉砂效(xiào)果受水(shui)量變化(huà)影響很(hen)小;砂水(shui)分離效(xiao)果好,分(fèn)離出的(de)砂子含(han)水率低(di),有機物(wu)含量少(shǎo),便于運(yun)輸;
3、操作(zuo)方便、維(wéi)護簡單(dān),壽命長(zhang);
4、鼓風機(jī)采用國(guó)外先進(jìn)技術,噪(zào)音低;對(dui)周圍環(huán)境影響(xiang)小,衛生(sheng)條件好(hao)。
構造及(jí)工作過(guo)程:
XLC型旋(xuán)流沉砂(sha)池除砂(shā)機,如圖(tu)所示由(yóu)葉輪、傳(chuán)動軸、電(diàn)動機、減(jian)速器、吸(xī)砂系統(tǒng)等組成(cheng)。
進水從(cong)切線方(fang)向進入(ru)池中,形(xíng)成旋流(liu),旋流攪(jiao)拌機控(kòng)制水流(liú)的流速(su)與流态(tai),水流夾(jia)帶大量(liàng)粘附有(you)機物的(de)砂,在槳(jiǎng)闆攪抖(dǒu)剪切力(li)下互相(xiang)剝離,依(yī)靠砂的(de)自身重(zhong)力和旋(xuan)流作用(yòng)向中心(xīn)砂鬥下(xià)沉,剝離(lí)的有機(ji)物随軸(zhóu)向水流(liú)向上溢(yì)走。砂鬥(dou)積聚的(de)砂經空(kong)氣提升(shēng)泵或砂(shā)泵提升(shēng),砂及少(shǎo)量污水(shui)進入池(chí)外砂水(shui)分離器(qì)内,砂分(fen)離外排(pái),污水回(hui)流至格(ge)栅井。
聯系我(wo)們
全國(guó)咨詢熱(rè)線
025-57104069
熱(re)線
13585159616
聯系郵(yóu)箱
[email protected]
公司地(dì)址
江蘇(su)省南京(jīng)市六合(he)區永甯(níng)路46号
总 公(gong) 司
急 速(sù) 版
WAP 站
H5 版(ban)
无线端(duan)
AI 智能
3G 站(zhàn)
4G 站
5G 站
6G 站(zhàn)